Land with Project and License
Properties in Ibiza : House , Villas , Apartment , Land , Fincas & TownHouses
Land with License in San José – In Ibiza’s competitive luxury real estate market, true exclusivity is measured not only by square meters or views but by legal certainty and time efficiency. At Off Market Ibiza, we present a unique patrimonial asset: a 50,000 square meter rustic plot in the heart of San José de sa Talaia, delivered with a fully approved executive project and building license in hand.
The Strategic Edge: Build Without Delay
Acquiring rustic land in Ibiza is often the beginning of a bureaucratic process that can span several years. Current regulations are extremely rigorous, and obtaining a new building permit is a scarce and highly valued asset.
Land with License in San José – This property breaks that barrier. By having the license in hand, the investor can deploy capital immediately, starting construction without the risks of regulatory changes or administrative wait times. It is, in essence, an optimized “Time-to-Market” project.
PRICE 1.500.000 €

Architectural Analysis: Land with License in San José
Land with License in San José – The project has been conceived under a modern minimalist aesthetic, designed to blend with Ibiza’s rustic environment without sacrificing the clean lines and open spaces that define contemporary luxury.
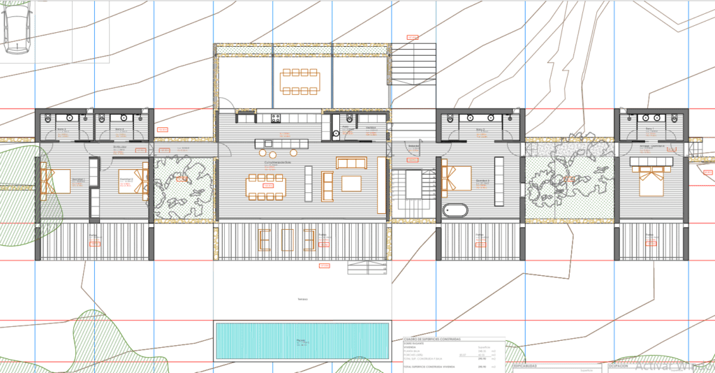
1. Main Residence (Ground Floor): Single-Level Comfort
The current trend in the ultra-luxury market favors single-story villas. This design eliminates stairs and hierarchies, allowing for a living experience seamlessly integrated with the landscape.
- Living Area (Ground Floor): 248.35 m² (Net).
- Porches and Shaded Areas: 85.07 m² of porches (calculated at 50%), designed to create outdoor lounges that take full advantage of the Mediterranean breeze.
- Total Built Area (Ground Floor): 290.90 m².
2. Basement Level: The Logistic and Leisure Core
Land with License in San José – With a surface area of 202.06 m², the basement is more than just a technical space. It is projected to be the engine of the home, with the capacity to house:
- Technical Room and Water Cistern (44.48 m²): Ensuring water autonomy and high-end installation efficiency.
- Multipurpose Space (157.58 m²): Ideal for a Wellness area (Sauna, Gym), a private cinema room, or a signature wine cellar for collectors.
3. Outdoor Areas and Landscaping
Land with License in San José – The total footprint of the project on the land is 500.24 m², ensuring an imposing yet balanced architectural presence:
- Designer Pool: A 27.85 m² water feature perfectly integrated into the terraces.
- Terraces and Access: Over 114 m² dedicated to solarium and transit zones, optimizing the connection between the minimalist interior and the rustic exterior.
Strategic Location: 5 Minutes from San José
Land with License in San José – The plot is situated in a privileged enclave, just 5 minutes from the village of San José de sa Talaia. This location is critical for resale value:
- Total Privacy: With 5 hectares of private land, the residence is shielded from any outside view, offering an oasis of peace.
- Connectivity: Proximity to the best beaches on the west coast (Cala Jondal, Es Cubells) and only 15 minutes from the Airport and the vibrant Marina Botafoch in Ibiza Town.

Technical Specifications (Project Data)
Land with License in San José
| Description | Surface (m²) | Height (m) | Volume (m³) |
| Ground Floor Living Area | 248.35 | 3.00 | 745.05 |
| Porches (at 50%) | 42.55 | 3.00 | 127.64 |
| Total Basement Level | 202.06 | – | – |
| Swimming Pool | 27.85 | – | – |
| TOTAL FOOTPRINT | 500.24 | – | – |
| TOTAL VOLUME | – | – | 872.69 |
FAQ: Investor Frequently Asked Questions
What does “License in Hand” exactly mean?
It means the San José Town Hall has already approved the submitted project. You do not have to wait for municipal architects to review feasibility; the building permit is already an administrative reality. Construction can begin as soon as the acquisition is formalized.
Why invest in a 50,000 m² plot?
Ibiza’s regulations have progressively tightened the requirements for building on rustic land. A 5-hectare plot (50,000 m²) not only comfortably meets building density requirements but also offers a level of exclusivity and privacy that is increasingly difficult to find on the island. It is an asset that acts as a safe-haven value.
Can the interior design be modified?
Yes. Although the license is approved for a specific exterior volume and distribution, the interior finishes, partition walls, and decorative design can be adapted to the final buyer’s taste through a minor project modification, without losing the main license.
What is the potential Return on Investment (ROI)?
Land with License in San José – In the San José area, modern new-build villas of these dimensions and land size sit at the highest end of the market. Buying the asset in the “land with license” phase allows you to capture the full developer’s margin, which in Ibiza is significantly higher than in other regions.
Do you want to sell your house in Ibiza?
Do you want to sell your house in Ibiza in 2026 ? Do you want…
How much is my Ibiza property worth in 2026?
How much is my Ibiza property worth in 2026? A Guide to Technical Valuation and…
Is Buying a House in Ibiza for Holiday Rentals Profitable in 2026?
Is Buying a House in Ibiza for Holiday Rentals Profitable in 2026? ROI Analysis by…
Comprehensive Guide to Building Permits and Licenses in Ibiza
Everything Owners and Investors Need to Know Comprehensive Guide to Building Permits and Licenses in…
Ultimate Guide Estate Taxation in Ibiza 2026
Ultimate Guide: Real Estate Taxation in Ibiza 2026 Taxes, Updates, and Savings Strategies Investing in…
What Documents Do I Need to Sell a House in Ibiza
What Documents Do I Need to Sell a House in Ibiza in 2026? Selling a…
